100. Yıl Apt. Konut Yapısı - Çelik İnşaat

Loading
loading..

Proje Özetİ

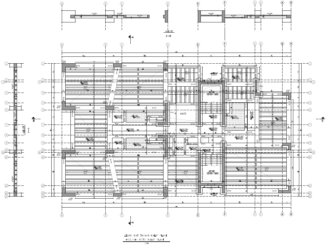
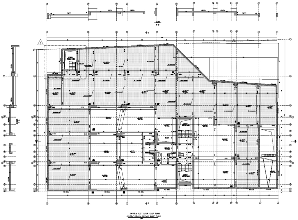
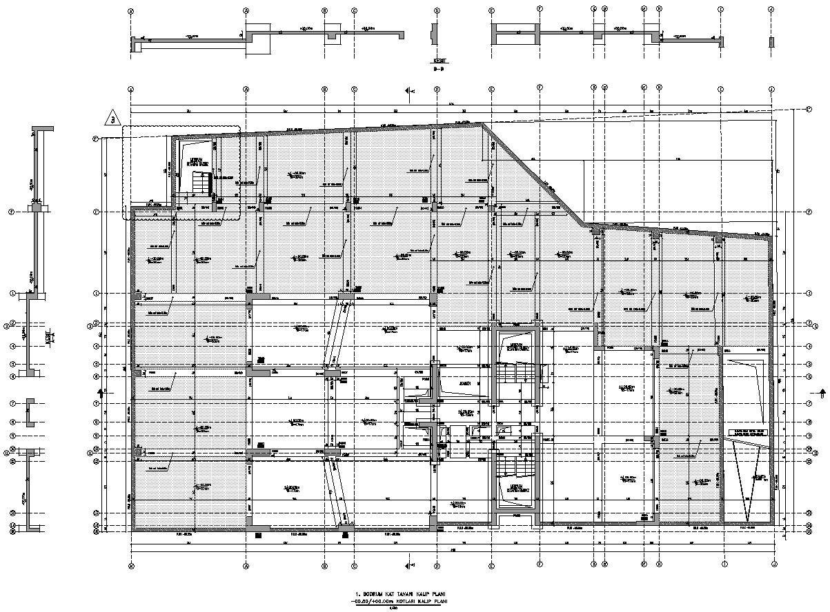
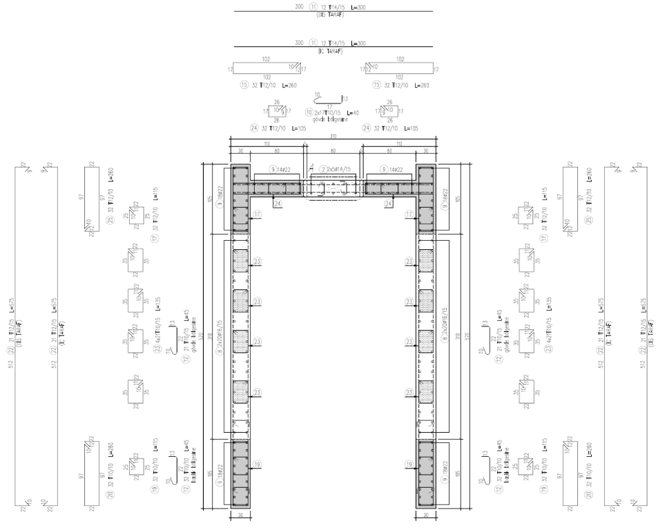
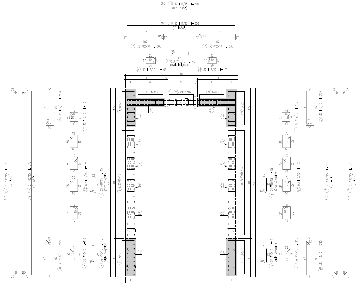
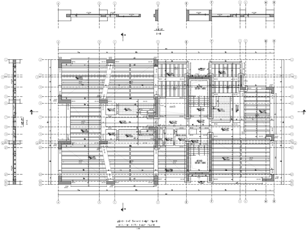
İSTANBUL/Kadıköy'de yapılan Cengiz ÖZDENOĞLU ve Hissedarları'na ait konut yapısıdır. 1 Bodrum + 11 Normal kattan oluşmaktadır. Yapının taşıyıcı sistemi tamamen betonarme, döşeme sistemi asmolendir. İnşaat alanı 6712 m² dir.

Fotoğraflar