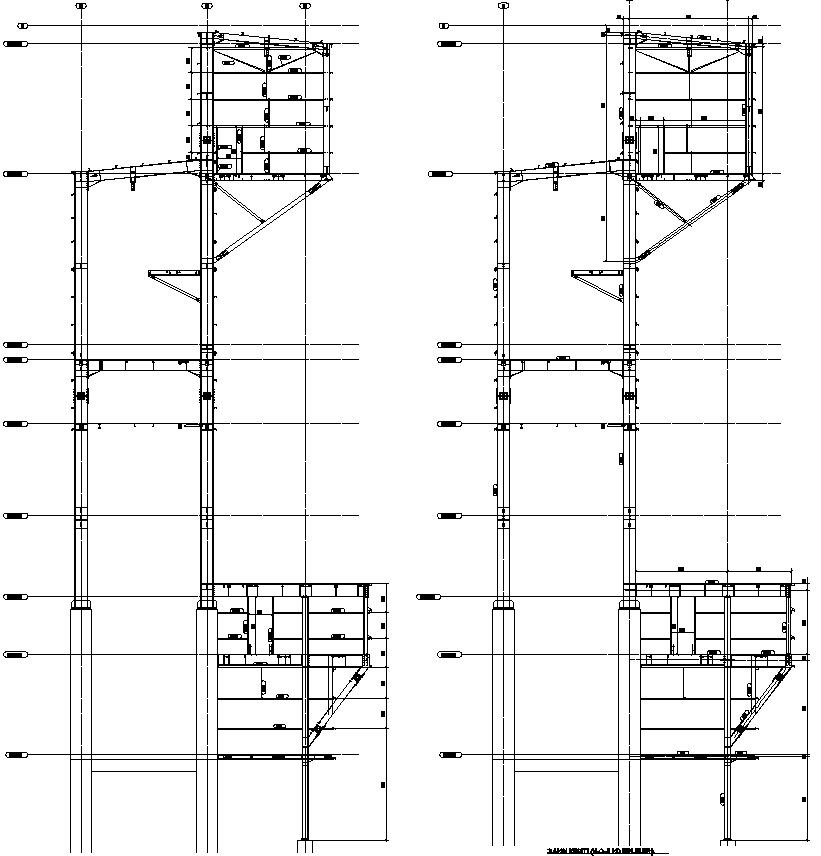
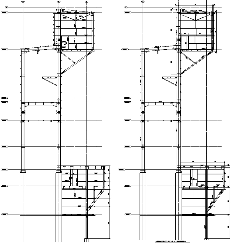
Kömür Yükleme Bunkeri

Loading
loading..

Proje Özetİ

Yeşilovacık limanında yapılan kömür yükleme bunkeri binası statik projeleri tarafımızdan hazırlanmıştır. Yapı Betonarme yapı üzerine oturan çelik platformlardan ve çatılardan oluşmaktadır. Yapıya bağlı bir elevatör ve bir konveyör bulunmaktadır. Konveyör'ün projesi de tarafımızdan hazırlanmıştır.

Fotoğraflar